LAMA-AAPCB-7850 1 BEDROOM APARTMENTS WITH SEA VIEW IN THE AMATHOUS AREA
Reference No.: LAMA-AAPCB-7850
- Category: Apartments
- Location: AMATHUS AREA
- Bedrooms: 1
- Status: For Sale
- Condition: New
-
Prices from:
€220.000
1 bedroom apartments with sea view in the Amathous area
Discover this attractive contemporary building nestled in the sought-after Amathous area. The location is within a short walking distance of the sea, all essential amenities, a tourist area, and not far from the motorway.
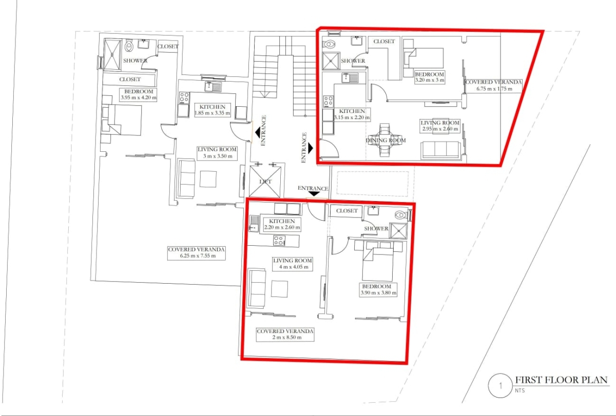
The building has 2 storey and comprises only six apartments in total. The available 1-bedroom apartments are on the 1st floor. Each apartment has a well-thought-out functional layout. It consists of a living and dining area, a modern kitchen with a peninsula table, an ample bedroom and a bathroom. The living area and the bedroom extend to a spacious covered veranda.
The apartments present a lucrative investment opportunity or a home for living.
The building is in an advanced stage of construction.
Detailed information
Delivery date: March 2026
1st floor
A/C provision
Ceiling spotlights
High-quality finish
Photovoltaic panels for common areas
Storage
Covered parking
Sea view
5-minute walking distance to the beach by the Saint Raphael hotel
Close to the motorway
Apartment 1
Internal area: 50 sqm
Covered veranda: 12 sqm
Side sea view
The price: €220 000 plus Vat
Apartment 2
Internal area: 51 sqm
Covered veranda: 17 sqm
Front sea view
The price: €240 000 plus Vat
